Et lite arkitektkontor
i Oslo som tegner stort og smått.

Arkitekt Inga Egeberg er opptatt av å tegne
inspirerende og gjennomtenkte prosjekter med fokus på
rasjonalitet, kvalitet og estetikk.

Fasadeendring og bruksending av eneboiig på Kolsås

Jeg legger vekt på god dialog og skreddersydde prosesser tilpasset budsjett og behov.
Målet er alltid å tegne helhetlige løsninger som man trives med over tid.

For et godt resultat ønsker jeg å følge prosjektene tett fra start og jeg bistår gjerne med søknadsarbeid, detaljering og oppfølging med fagfolk underveis i prosessen.

Utvalgte prosjekter


Huset i kanten av Østmarka

Et 50-talls hus ved skogkanten får en ombygging og modernisering. Eksisterende bod og baktrapp bygges om til et kontor med utsikt til skogen, og fellesarealene tegnes om til en luftigere og mer åpen løsning.
Fasaden etterisoleres og får ny kledning, mens nye åpninger slipper mer lys og luft inn i husets rom.

Status: Ferdigstilt 2024

Interiør i Krydderhagen

I en leilighet i Krydderhagen på Hasle bor en familie som har behov for mer plass.
Et kompakt barnerom og gjesterom fikk nye plassbygde løsninger slik at de kan bli boende i leiligheten over lenger tid. Her ble det bygget arealsmart møblering med mulighet for forskjellige typer bruk, solide materialer og massevis av oppbevaringsplass.

Status: Ferdigstilt

Villa Utsikten

Rehabilitering, fasadeendring og ombygging av en 150 år gammel sveitservilla i Ekebergskrenten. Lag på lag med senere ombygginger ryddes opp i, oppholdsrom blir mer luftige og åpne og flere orginale fasadeåpninger tilbakeføres.

Status: Ferdigstilles våren 2025

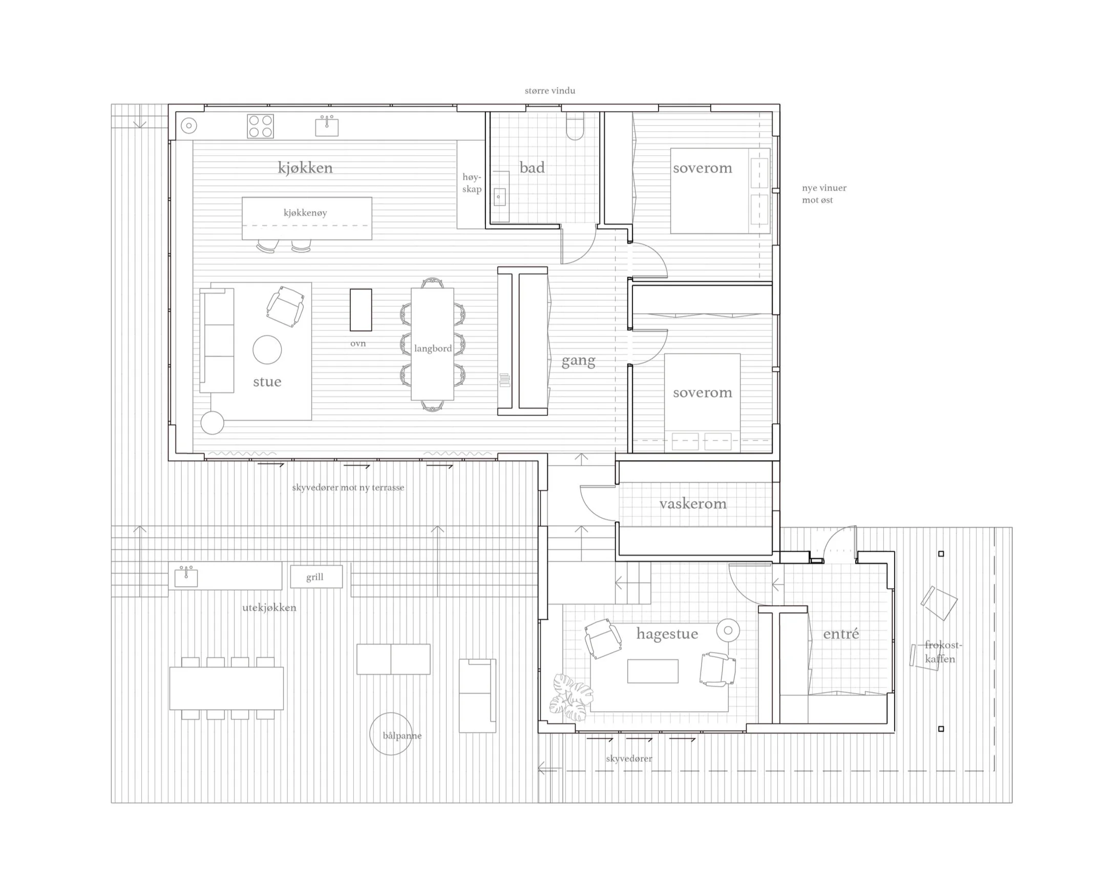
Ombygging og fasadeendring
på Kolsås

Enebolig fra 60-tallet skal få en ny fasade med et oppgradert uttrykk i kvalitetsmaterialer.
Kjeller bygges og om bruksendres, og en ny trapp gir bedre kontakt mellom etasjene.

Status: søknad 2025

Ombygging på Hvaler

Ombygging av en 60-talls enebolig på en fantastisk naturtomt, omringet av skog på alle kanter. Huset har behov for omsorg og oppgraderinger; et lappeteppe av senere påbygg og en introvert planløsning skal ryddes opp i, og fasaden skal etterisoleres og fornyes.

Deler av arealene omorganiseres slik at familien får brukt alle rom. Fasaden åpnes opp og nye vinduer vil skape mer kontakt med naturen. Fra stuen i sør vil store glassdører gi tilgang ut til en stor platting som trapper seg ned i følge med terrenget.

Status: Skisseprosjekt

Sommerhus ved sjøen

Skisseprosjekt av en hytte i skjærgården. Familien ønsket at bygget skulle henvende seg langs vannet i front og omkringliggende skog og berg i bakkant. Det legges vekt på en trekonstruksjon som skal være enkel å bygge selv og som fester seg varsomt til terrenget og gir interessante strukturelle og romlige prinsipper.

Status: Skisseprosjekt

Jeg er alltid åpen for nye prosjekter.
Ta gjerne kontakt for en prat!